Objektbeschreibung
Dieses Wohn- und Geschäftshaus wurde 1904 in massiver Bauweise auf einem 559 m² großen Grundstück in der Innenstadt/ Fußgängerzone von Hessisch Oldendorf erbaut und ab 1991 umfangreich saniert und modernisiert. Durch den zentralen Standort erfahren die Mieter ein hohes Maß an Wohn- und Lebensqualität. Kunden, Patienten und Besucher finden Parkplätze in der direkten Umgebung wie z.B. in der verkehrsberuhigten Einkaufsstraße oder auf dem öffentlichen Parkplatz am Münchhausenring. Das Gebäude verfügt über einen Garagen- und einen Carportstellplatz auf dem hinteren Grundstücksgelände. Hier findet jeder einen Hort der Ruhe und kann im geschütztem Gartenbereich z.B. seinen Feierabend genießen.
Die Flächen teilen sich wie folgt auf:
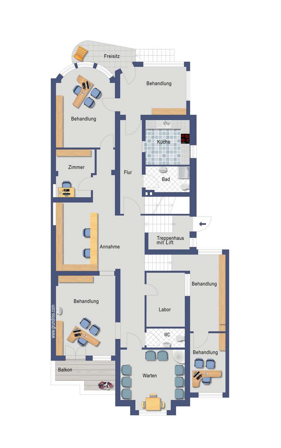
- Im Erdgeschoss eine Arztpraxis mit insgesamt ca. 177 m² Nutzfläche.
- Im Obergeschoss eine großzügige Wohnung mit ca. 121 m² Wohnfläche.
- Im Dachgeschoss zwei heimelige Wohnungen mit ca. 50 m² und ca. 63 m² Wohnfläche.
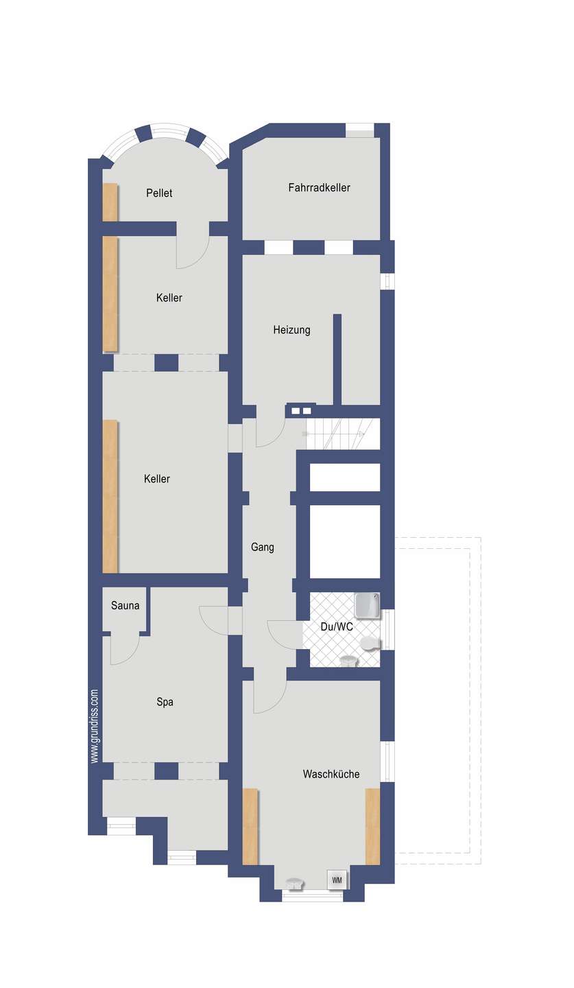
- Keller (inkl. Sauna und Waschküche) mit ca. 138 m² Nutzfläche.
Das Objekt zeigt sich in einem guten und ordentlichen Zustand, da es stets modernisiert und renoviert wurde. So wurde auch schon früh über ein nachhaltiges Heizmanagement nachgedacht und eine Pelletheizung und eine thermische Solaranlage zur Heizungsunterstützung eingebaut. Das sorgt für geringe Heizkosten, gerade in diesen Zeiten.
Es gibt darüber hinaus eine Regenwassernutzungsanlage mit 4.000l Fassungsvermögen, die bei Bedarf wieder in Betrieb genommen werden kann.
Die Wohnungen sowie die Praxis sind derzeit zu moderaten Mieten langjährig vermietet. So ergeben sich Potenziale der Renditeerhöhung im Bereich des Mietniveaus.
Interessiert an diesem Jugendstil-Kleinod im Herzen von Hessisch Oldendorf? Dann freue ich mich auf eine Besichtigung mit Ihnen!
Lage
Makro-Lage:
Hessisch Oldendorf ist eine Stadt im niedersächsischen Landkreis Hameln-Pyrmont unweit der Weser und verzeichnet - Stand Dezember 2020 - eine Einwohnerzahl von 18.190. Hessisch Oldendorf liegt 13 Kilometer nordwestlich vor der Stadt Hameln an der Weser. Durch die Stadt führen außerdem der Weserradweg und die Deutsche Märchenstraße. Seit der Gemeindereform von 1973 gliedert sich Hessisch Oldendorf in acht
Ortschaften mit insgesamt 24 Ortsteilen:
Hessisch Oldendorf - ehemaliges Stadtgebiet/Kernstadt,
Großenwieden - Großenwieden und Kleinenwieden, Rohdental - Rohden, Segelhorst und Welsede
Hohenstein - Barksen, Krückeberg, Langenfeld, Wickbolsen und Zersen
Süntel - Bensen, Haddessen, Höfingen und Pötzen
Fischbeck - Fischbeck (mit Stift Fischbeck) und Weibeck
Sonnental - Friedrichsburg, Friedrichshagen, Fuhlen, Heßlingen und Rumbeck
Hemeringen/Lachem - Hemeringen und Lachem.
Die dreispurige Bundesstraße 83 (Wesertalstraße) tangiert das Weserstädtchen im Süden und sorgt für eine optimale Anbindung in Richtung Hameln, Rinteln und Minden. Auf der Landesstraße 434 erreicht man nach neun Kilometern die Bundesautobahn 2 (Anschlussstelle Rehren). Die Entfernung nach Hannover beträgt etwa 50 Kilometer. Des Weiteren gibt es eine Brücke zur Überquerung der Weser.
Der Bahnhof Hessisch Oldendorf mit Park- und Ride-Parkplätzen und höhengleichen Einstiegsmöglichkeiten ist Haltestelle der Weserbahn, die von Löhne über Bad Oeynhausen, Vlotho, Rinteln, Hessisch Oldendorf, Hameln und Elze nach Hildesheim führt. In Hameln besteht die Möglichkeit mit der S-Bahn-Linie 5 nach Hannover oder Paderborn zu gelangen. Das Stadtgebiet Hessisch Oldendorf ist mit mehreren Bushaltestellen an das Netz des
Nahverkehrs Hameln-Pyrmont (Die Öffis) angebunden.
Highlights von Hessisch Oldendorf:
Historische Gebäude aus der Weserrenaissance im Stadtkern, Schillat Höhle, Schaumburg, VW Käfer und Bulli Museum, Baxmann Bad, pittoreske Fußgängerzone.
Mikro-Lage:
Das Mehrfamilienhaus liegt unmittelbar angrenzend an das Zentrum der Fußgängerzone. In der näheren Umgebung befinden sich alle Einrichtungen des täglichen Bedarfs wie diverse Super- oder Baumärkte, Arzt im Haus! Apotheke, Krankenhaus, Schulen, Kindergarten und Stadtzentrum sind allesamt in wenigen Minuten fußläufig zu erreichen!
Kleine Restaurants, Geschäfte und nicht zuletzt der belebte Wochenmarkt um die historische Kirche herum machen diesen Teil von Hessisch Oldendorf besonders liebens- und lebenswert.